-
大佬帮忙分析一下
想在嘉兴买一套小户型自住,卓越珑府、香樟国际、金雅花园、玖熙花苑哪个好一点,有没有大佬帮忙分析一下,预算大概在140个左右[/11害羞]
JJYYook 2024-08-08 19:1613728 21
-
双溪湖这个新盘毛坯1.9万?卖得掉吗?
蓝色风景鱼 2024-01-08 09:3210563 21
-
上海政策下来,对嘉兴真的是利好吗?
上海出新政,利好会带动嘉兴?上海好和嘉兴有什么关系,说不定还会虹吸一波呢...
28815135 2023-12-15 09:538056 21
-
预算有限首套房 嘉兴市本级这些新盘的小户型选哪个比较好?
首套房预算有限的情况下,这些小户型哪个值得买?,就不说是哪个盘了,光看户型哪个好一点。
天堂叮当 2023-06-08 13:2913766 21
-
绿溪玫瑰园和长新公寓怎么样
阳光的狮子tlyi 2022-11-06 22:115737 21
-
难道10月11月要土拍了?
跟朋友聊起来,说是10月11月要土拍要土拍,而且这一次开始城南经开一中旁边这块地。有了解实情的吗
中国将 2022-09-08 16:049894 21
-
万科臻镜到底怎么样
个人感觉靠高架,塔楼连廊,人才公寓太多。大家觉得呢
50728743 2022-05-16 10:5910741 21
-
明德里vs四季花园!娃下半年要上小学了,该选哪个?
娃下半年要上小学了 这几天在看科技城附近的小区,目前看了两套,一套是四季花园103平中间户毛坯,另一套是旁边的中海明德里精装99平,想问问这两套如果是你们会选那一个?
山风晚晚 2025-05-12 15:458373 14
-
天誉府和春山禾府怎么选?春山禾府价格没出来...改善
春山168㎡vs天誉166㎡ 或春山188㎡vs天誉186㎡
当年的阿滴 2024-08-02 09:087325 17
-
不落户嘉兴,小孩能上什么学校呢?
小孩3年后要上小学了,打算明年买房,夫妻俩都是外地的,不打算落户嘉兴。工作在油车港。私立的学费太贵,公办的学校需要那些条件可以读书呢?问下买了学区房,3年,加上积分能上什么学校?
49074936 2023-11-07 13:073778 4
-
商贷利率
想问下有人知道现在四大行的商贷利率吗?5月份要去办
呆萌的小羊wvqdh3 2022-04-18 08:236346 17
-
现在学区房还能买吗?
如果那些明年要用的话是不是明知道是个坑也只能跳了?还能买哪个学区呢?
CVCTV985 2023-11-20 11:246170 20
-
海盐的房子怎么样
现在海盐和平湖的房价首付只要两万左右,不知道大家怎么看?
51481086 2023-08-16 17:056468 20
-
250w预算想买15层以下的次新房或者新房
250w预算想买15层以下的次新房或者新房,二环内周边配套齐全的,有无楼盘推荐
51704698 2023-04-17 23:267827 20
-
碧桂园云栖里为什么这么便宜?
同
晚上_睡不着 2024-07-17 12:3310733 16
-
如果要买未满2年的新房的话,那笔税费...
就非得买方承担吗?还是说可以协商?
Junonnnnn 2024-06-06 11:174942 9
-
双溪湖板块天誉府和至镜园怎么选
现在纠结天誉府116平和至镜园112平,天誉府户型更好小区内配套更好,至镜园地理位置更好交房日期更早,大家怎么看
中华民族族草 2024-05-07 09:188720 16
-
均价2w,清华附中和北师大选哪个?
要自住,清华附中附近的房子其实基本都是新房和次新房,目前只考虑明德里和云境园,其他的质量哈哈哈北师大附近房价也不便宜,感觉周边地段配套要好很多,但是这边二手房房龄比较久两边差不多看的均价都是2w左右,哪个更好一点?或者有什么别的推荐?
中国将 2025-04-15 09:4511866 19
-
听说这个小区质量不好,请问建筑质量怎么看?
近期想买套二手房,听好几个朋友说金茂府建筑质量好,晴雪圆质量一般,我看外立面和小区环境也都挺不错的。请问这是怎么看出来的?[/11尴尬]
火星嘉人 2024-04-14 15:497528 2
-
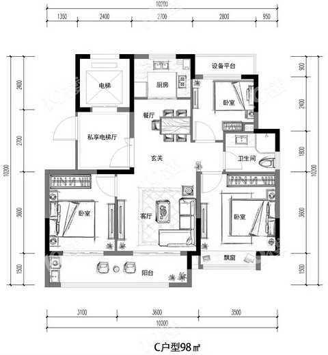
这个户型是不是很差?
28932176 2023-02-14 20:0011425 19
标签简介
买房帮帮团 购房路上的诸多烦恼,来这里统统帮您消灭! 纠结地段、楼层、户型等,这里的“大咖”都能帮你解决! PS:发帖有红包,最高5元红包奖励哦



