#装修日记#
187人参与 50770浏览
-
大品牌装修公司也同样拉胯!
这房子家里人让我全权负责,千挑万选,最后选了一家还是嘉兴知名度挺高的装修公司,结果后悔的肠子都青了!去年10月中开始装修的,到今年9月才算是装修好,可是中间碰到的糟心事一箩筐!简直了!装修公司只知道装修费,每笔费用我也都是按时给的,去年十月订的门,但今年8月才装上!今年4月定做的阳台洗衣柜,9月头上我催了,中间隔了5个月,后来告知我柜子做的不好,所以退回去了!我真是草泥马了。要干嘛去了?一个柜子周
旺仔尐草莓 2024-09-23 14:1813420 37
-
一整个期待“住”了!
【小区名称】云境园【户型面积】147㎡【装修风格】现代【装修公司】龙兴装饰【装修方式】全包【开工时间】2024年6月30日【设计师】忻维佳【项目经理】房伟开工快一个月了,我也来记录下我的新家装修之旅,前期装修公司选择也花了蛮长时间的,因为里面装满了我的生活,必须是有温度有色彩的,自然是谨慎谨慎再谨慎啦~对比了几家之后我和老公都选择了龙兴,最初是龙兴的设计师和方案打动了我们,然后价格和材料方面也很满
嘟嘟啦 2024-07-27 10:008718 57
-
装修记录:玖樾庄,现代风格
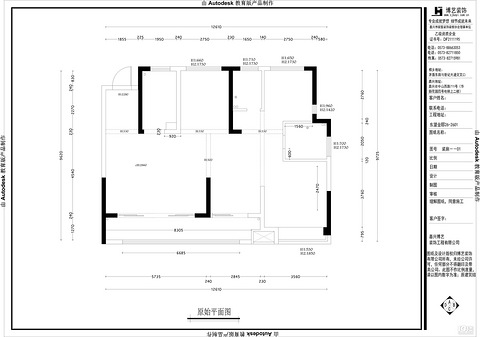
写个流水贴,记录下家里装修的过程。【小区名称】:玖樾庄【户型面积】:144方【装修风格】:现代简约【装修方式】:半包【设计师】:汪乔蔚【装修公司】:博艺装饰【开工时间】:6月3日 装修从找装修公司开始:这套房子算是我们的改善房,交房之后就打算装修的那种。所以在交房前我们就在了解装修公司了,选了嘉兴比较叫得上名的装修公司了解。以下说一点小心得吧:1.找3家左右装修公司做对比,少了没什么可比性,多了自
左顾右盼的鸡块u9 2024-08-19 16:149595 60
-
90后小夫妻在装修这件事儿上绝不将就
其实装修也是件人生大事,这辈子估计也来不了两回。也曾无数次设想过家的样子,生活已经很苦了,就当是给自己未来的回忆录吧,写一写我的装修过程。从买房到收房也差不多有两年的时间了,从自装到整装再到自装,纠结了好久,最终还是决定全包。在跟各个装修公司(我们选的都是嘉兴比较大牌点的公司,放心安心舒心最重要)交涉中我发现,脸皮太薄很容易被推销,要坚持自己的大原则,自己的家只有自己最上心,不能给商家看碟下菜的机
夏之目 2024-08-14 15:0812429 59
-
紫蓝装饰
有没有业主紫蓝装修的来说看怎么样
9257823 2025-02-02 12:532705 7
-
欢迎来到你互联网上的新家
现实中我的新家,是你喜欢的样子嘛哈哈哈哈老早交房之前我们就在看装修公司,这不马上就安排上了,就是希望能早日住进新房子里。在嘉兴本地的几家稍微大点的装修公司里面选择对比了下,也参考了网友们的前车之鉴,通过沟通下来,我们把想要的家的样子表达出来然后设计师呈现出来的设计中最满意的还是紫蓝,都有精进改了几版,大浪淘沙下来也选择了紫蓝装饰。【小区名称】苏嘉云境园【户型面积】166㎡【装修风格】现代原木【装修
喝醉滴苹果 2024-08-01 10:089340 47
-
有个问题,刷完腻子用强光手电筒要额外收费吗?
我和师傅说回头验收不平的话要找他的,他给我来了句刷平和用强光手电筒验收不是一个成本…要是结束后要像图里这样验收的话,是另外的价格想问一下楼里有没有懂行的?真是这样吗?如果要手电筒照出来也是平的,要给多少钱?还是说师傅纯粹是为了多收钱骗我呀?
扎着马尾辩的女孩 2025-06-06 13:1811899 18
-
【2022年DZJ缔造家瓷砖杯日记大赛】禾堂韵里
装修公司:博艺装饰装修小区:禾堂韵里设计师:陆雪峰2022.1.8开工 赶在前年把墙该敲的敲,该砌的砌等着年后开工做水电
cc嘻嘻19 2022-02-10 16:429568 26
-
明装暖气,成功下车,对比了几天
明装暖气,成功下车,对比了几天。趁现在有国补,下单了,师傅上门测量出了配置,我这个做了5组,安装过程挺快的,一天就安装好了,做的真不错,美观大气,这个冬天可以过的舒适了。
md8914养生的 2024-12-08 15:0216116 48
-
睛湾佳苑143平,"穷装"大作战,现代“俭约”风 ! 最终花多少钱?
(一)、【开工大吉:仪式感满满】 11月2号,我们正式开工啦,装修公司的团队准时到达,还特意搞了个小仪式,那一刻,我仿佛看到了未来温馨小窝的模样! 【小区名称】睛湾佳苑 【户型面积】143平 【装修风格】现代“俭约”风 【装修公司】博艺装饰 【装修方式】半包 【开工时间】2024年11月2日 【设计总监】汪乔蔚 【项目经理】李小六 这是我人生的第二套房子,前
蝈蝈小人 2025-01-01 20:158348 51
-
装修选哪家公司啊
目前看完之后在有度和紫蓝两家中纠结,有没有友友们说下这两家的优缺点啊,有没有坑呀
机智的卤蛋 2025-02-17 22:208919 49
-
我去看了,挺不错的
七安991314 2025-02-16 12:442011 2
-
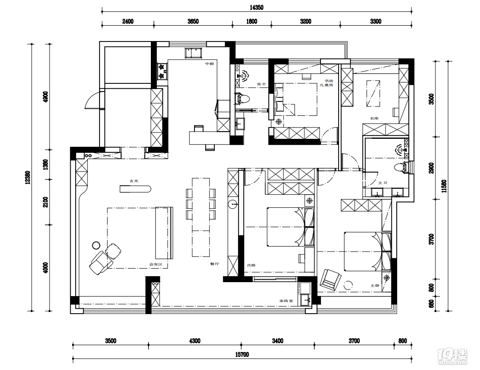
【装修日记大赛】东望金邸+141+现代
【小区名称】:东望金邸【户型面积】:141【装修风格】:现代简约【装修公司】:博艺装饰【装修方式】:半包【开工时间】: 2024.10.28【设 计 师】 :丁林【项目经理】:谢林坤 我们家是博艺的老客户了。当时我们装修得就很顺利,设计师人也很好,而且从12年到现在,博艺每年还都会打电话给我们做回访,因此我爸妈就特别的认可。这次的房子准备装修来给二老养老住,特地找到博艺,还找当年的设计师给我们做设
美好的前程 2024-11-02 14:5927076 43
-
装修避雷!我就是这么踩着雷过来的
切记!切记!全屋定制一定要避坑的店,一定要避坑! 红星美凯龙的某XX全屋定制还卖瓷砖! 多的不说了,能少一个受害者是一个受害者。
不喜欢冬天 2025-04-13 10:542735 19
-
我们的大玻璃窗终于装上了
好久不更新了,因为最近工地处于停工状态,在等我们的大玻璃窗,昨天终于到了,定制这个窗的周期还是有点长,所以装修的朋友们如果不想耽误工期一定要提前看好,避免影响工地进度!安装这个大玻璃窗也是一个大工程啊,从早上一直到晚上才装好,师傅们也是很不容易啊!今天终于安装好了,下一步就是准备贴砖啦,瓷砖也一起送到了,现在的装修工艺跟以前很多都不一样了,工艺上也有很大的变化。下面放几张图片看一看这个大窗,视野还
艺术空间 2024-10-26 17:2518533 46
-
装修增项求助
第一次装修,请教大家一个问题。我是半包装修,签合同前设计师设计好了装修方案,确定了要拆墙砌墙,现在瓷砖都贴完了,设计师说有增项,说拆墙砌墙的费用没算进去。请教大家,现在他们说的增项款我还没交,项目经理和设计师让我去房子核对我也没去,接下来我应该怎么办?更新1:感谢大家的回复,谢谢各位。我算了一下,增项没给我提前说的费用合计6957.66元,这个钱我也给得起,但我隐约感觉不应该这样的,我现在的感受
像你那样的人 2025-04-28 11:458078 45
-
从图纸到新家的蜕变
我的装修日记:从图纸到新家的蜕变 一、致谢:装修这趟耗时近六个月的旅程,若没有靠谱的装修团队护航,真不敢想象会是怎样的兵荒马乱。而我何其幸运,选对了嘉兴博艺装饰—— 这家在嘉兴深耕多年的老牌装修公司,从团队实力、品质保障到售后服务,每一处都彰显着老牌品牌的扎实与可靠,也让我真切体会到 “选对品牌,装修省一半心” 的道理。1、先说团队实力,这也是博艺装饰最让我惊艳的地方。设计师陆敏锫(重点说一下是个
Shirleyyyy 2025-09-30 15:531482 2
-
南洋复古风,梦想家园的启航
占楼
回归自然之石头记 2024-07-06 14:321876 4
-
开工开工,选择的博艺装修公司,砌墙开始师傅给力两天搞定
大树下的老虎pw 2024-06-26 19:327017 31
-
信达香格里
信达香格里安装落地实景拍摄
嘉木全屋定制郭 2025-05-06 11:171257 1
标签简介
大家都在讨论"装修日记"赶紧来看看吧~



