▇
项目名称—《梵--赫》
小区名称—英伦都市
户型面积—480m²
装修风格—轻法式
主创设计师—尹超
执行设计—裴思杰
装修公司—博艺装饰
部分品牌—蒙娜丽莎瓷砖,德立淋浴房 , 帅康全屋定制,汉斯格雅卫浴,博世电器,千丽灯饰,佳佳乐地板等
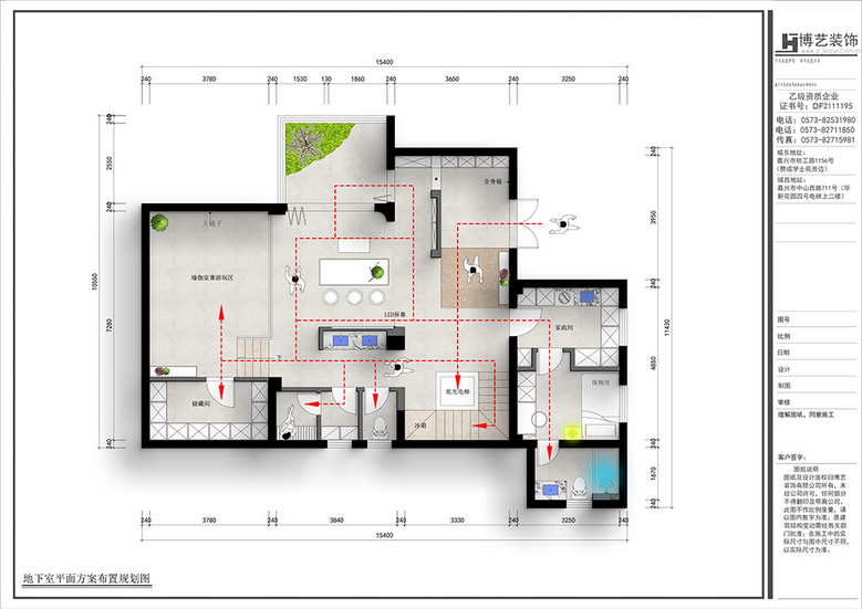
▇ 地下室

从地下室进入这套别墅,首先颠覆的是你对地下室昏暗与潮湿的刻板印象。打开大门,最先迎接你的,竟是从玄关的底部透过来的一捧毫无保留的灿烂阳光,让整个玄关如同一幅精美的双面绣,一面是诗意,一面是生活。
最精妙的是下方的挑空设计,仿佛在地面“凿开”了一扇光的窗口,将天井里的阳光毫无保留地引入,让光线如流水般漫过台阶。而玄关的反面,则是我们生活记忆的收纳墙。它不同于正面的归家仪式感,它充满了生活的温度:旅行带回的陶罐、工作中喜欢翻看的杂志,和孩子一起做的手工……每一件收藏都是一个故事。这个设计,巧妙地将空间的实用性与艺术性融为一体,让归家后的第一眼风景背后,填充满我们生活中美好的记忆。
深入探究这束从玄关“借”来的光,就会发现它源于我们引入的那方天井。同时顺着天井我们把四周打开,用玻璃门接引了草木生机,最终让地下室的每一个角落,都充满了向上生长的力量。
玻璃门不仅将无限的光线引入,更将外部的景致无缝引入室内。一家人钟爱的瑜伽室,茶室,桑拿房,游玩区,都围绕着这个天井徐徐展开,变成了家庭的一个“秘密基地”。一旁体贴的保姆房、高效的家政间与储藏室,也都因巧妙的格局设计而拥有了各自的采光,一扫传统地下室的压抑潮湿。
▇ 一楼

若说要感受一个家的温度,那一定是在一楼公区。这里没有严格的边界,步入其中,你首先会被那种豁然的开阔感所包裹。客厅、茶室、餐厅、厨房,每个空间都并非一个个孤立的存在,而是一个连续的整体,仿佛合奏了一首起承转合的流畅乐章。
客厅沙发松软地围合出交谈区域,地面则是温润的人字拼橡木地板,最大的惊喜来自那面朝南的落地窗,它如同一幅巨大的画框,将外面的花园美景无缝接入室内——闻樱花簇簇的春日,观绿意葱茏的夏荫,赏澄澈空明的秋月,盼白雪皑皑的冬枝,看着窗外的四季更迭,光景流转,便觉岁月静好、时光安然。
一个悬空的电视背景墙巧妙地起到了客厅与茶室在视觉上的区隔,既保证了空间的独立性,又不破坏整体的通透。女主人爱在此处,摆弄着各地海淘回来的藏品,在茶香袅袅中,慢条斯理地沏上一壶普洱,在这半开放的小天地里,既享着独处的宁静,又感受着家人在侧的温暖。
特意选择了一张沉稳的实木大圆桌凝聚家人之间的温情,因为始终觉得圆润的造型更能聚拢人气。这里不仅是一家人每日享用家常三餐的地方,更是承载了无数欢聚的时刻。家人围坐一桌,举箸之间,便是最踏实的幸福。
摒弃了传统的封闭或完全开放,主人选择了更具弹性的方式设计了这个可开可合的“魔法厨房”,足以突显主人一家生活的智慧。一套极窄边框的透明玻璃移门成为了关键。当门完全打开时,厨房、导台与餐厅彻底融为一体,成为一个开放的美食社交空间。而当厨房需要煎炸烹调时,玻璃移门便可轻松闭合。这种“分而不离”的设计,完美解决了中式烹饪的痛点,同时保留了开放式的互动优势。紧邻厨房的,是一个让人安心的零食储藏间,里面是孩子的“快乐补给站”,也是家人幸福的储藏间。